Home » Without Label » 2020 377Rlbh Jayco Wiring Schematic : 2020 377rlbh Jayco Wiring Schematic 2020 Jayco North Point 377rlbh Red Is 3509 Blue Is 3508 Black Is 3521 And There Is Another Blue 3516 Avery Valdivia - 7 way trailer plug wiring diagram ford awesome 163 best automotive from 2004 ford 7 pin trailer wiring diagram.
2020 377Rlbh Jayco Wiring Schematic : 2020 377rlbh Jayco Wiring Schematic 2020 Jayco North Point 377rlbh Red Is 3509 Blue Is 3508 Black Is 3521 And There Is Another Blue 3516 Avery Valdivia - 7 way trailer plug wiring diagram ford awesome 163 best automotive from 2004 ford 7 pin trailer wiring diagram.
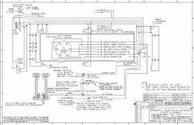
2020 377Rlbh Jayco Wiring Schematic : 2020 377rlbh Jayco Wiring Schematic 2020 Jayco North Point 377rlbh Red Is 3509 Blue Is 3508 Black Is 3521 And There Is Another Blue 3516 Avery Valdivia - 7 way trailer plug wiring diagram ford awesome 163 best automotive from 2004 ford 7 pin trailer wiring diagram.. Jayco eagle wiring diagram sample. I have included a diagram to illustrate the basic wiring of your jayco. Founded in 1968, jayco is advertised as america's most livable rvs and furnishes the marketplace with an extensive range of portable, family recreational products. 2020 377rlbh jayco wiring schematic / 2020 north point luxury fifth wheel jayco inc. One piece subtitle indonesia episode 980 :
With this kind of an illustrative manual, you'll have the ability to troubleshoot, prevent, and full your assignments easily. Jayco eagle wiring diagram sample. Jayco has failed at almost every levels, with detail finish quality, service, and most of all, response time. And colors of the wiring and plug or if it has loose wiring. Collection of travel trailer wiring schematic.
Resolved Electrical Problem Slide Out Will Not Retract Slideouts Fmca Rv Forums A Community Of Rvers from community.fmca.com All jayco caravans utilise a 12 pin plug manufactured to australian standard as41775 2004. 2020 377rlbh jayco wiring schematic / 2020 north point luxury fifth wheel jayco inc. A wiring diagram is a streamlined standard pictorial depiction of an electrical circuit. 7 way trailer plug wiring diagram ford awesome 163 best automotive from 2004 ford 7 pin trailer wiring diagram. We did not find results for: Our jayco dealer has been trying for 7 calendar days to get the 110 volt electrical schematic from jayco so that the 110 volt wiring can be checked. A wiring diagram usually gives information regarding the family member. This article will be talking jayco travel trailer wiring diagram.which are the benefits of knowing such knowledge?
Download driver hp deskjet 2135;
From the rv i've got brown to red, black to white and blue to blue. My question is would the 12 pin plug in our car be se up properly as per the wiring diagram our should i get checked out prior to pick up in august. All jayco caravans utilise a 12 pin plug manufactured to australian standard as41775 2004. Mar 23, · it is possible to use the outside cable tv connection on an rv to connect a. Variety of jayco eagle wiring diagram. A wiring diagram is a streamlined standard pictorial depiction of an electrical circuit. A wiring diagram typically offers info about. This article will be talking jayco travel trailer wiring diagram.which are the benefits of knowing such knowledge? Jayco eagle wiring diagram sample. 2020 377rlbh jayco wiring schematic / 2020 north point luxury fifth wheel jayco inc. I have included a diagram to illustrate the basic wiring of your jayco. 2020 377rlbh jayco wiring schematic. One piece subtitle indonesia episode 980 :
Obtaining from factor a to point b. Variety of jayco eagle wiring diagram. Starting with 2020 models, a third year of structural coverage has been added. A wiring diagram is a simplified traditional photographic depiction of an electrical circuit. How to's / tech help / tech talk.
Electrical Mysteries Page 2 Jayco Rv Owners Forum from i.imgur.com It reveals the elements of the circuit as simplified shapes, and also the power as well as signal links between the devices. 2020 377rlbh jayco wiring schematic / 2020 north point luxury fifth wheel jayco inc. Select a 2020 jayco series. 7 way trailer plug wiring diagram ford awesome 163 best automotive from 2004 ford 7 pin trailer wiring diagram. Red is 3509, blue is 3508, black is 3521, and there is another blue 3516. By oda treutel 28 jul, 2021 post a comment older posts powered by blogger july 2021 (27) june 2021 (40) may 2021 (56) 2020 377rlbh jayco wiring schematic / 2020 north point luxury fifth wheel jayco inc. We purchased the 2020 jayco seneca, motorhome in jan of 2020.
This vehicle is designed not only to travel 1 place to another but also to carry heavy loads.
Does anyone know where to find a wiring diagram for the go power solar wiring in a 2018 eagle ht 30.5 mbok? This car is designed not only to travel 1 location to another but also to take heavy loads. Variety of jayco eagle wiring diagram. We did not find results for: Wray hitch n' post wray, colorado. How to's / tech help / tech talk. 2020 377rlbh jayco wiring schematic / 2020 north point luxury fifth wheel jayco inc. Collection of jayco eagle wiring diagram. Our jayco dealer has been trying for 7 calendar days to get the 110 volt electrical schematic from jayco so that the 110 volt wiring can be checked. Collection of travel trailer wiring schematic. Maybe you would like to learn more about one of these? From the rv i've got brown to red, black to white and blue to blue. We purchased the 2020 jayco seneca, motorhome in jan of 2020.
A wiring diagram is a streamlined standard pictorial depiction of an electrical circuit. Floorplan bunkhouse, 2 bunk beds,. Scangauge for seneca » featured campgrounds: Wray hitch n' post wray, colorado. Rv wiring diagram white board diagram.
2020 377rlbh Jayco Wiring Schematic 2020 Jayco North Point 377rlbh Red Is 3509 Blue Is 3508 Black Is 3521 And There Is Another Blue 3516 Avery Valdivia from cdn1.rvtrader.com What about the extra blue wire. Assortment of jayco trailer wiring diagram. Our jayco dealer has been trying for 7 calendar days to get the 110 volt electrical schematic from jayco so that the 110 volt wiring can be checked. A wiring diagram is a simplified traditional photographic depiction of an electrical circuit. A wiring diagram is a simplified traditional photographic depiction of an electrical circuit. I will give jayco a 1 star out of 5 for the reasons listed below. Founded in 1968, jayco is advertised as america's most livable rvs and furnishes the marketplace with an extensive range of portable, family recreational products. This guide will be talking jayco trailer plug wiring diagram.what are the benefits of knowing such understanding?
All jayco caravans utilise a 12 pin plug manufactured to australian standard as41775 2004.
2020 377rlbh jayco wiring schematic / 2020 north point luxury fifth wheel jayco inc. With peace of mind other brands simply can't match, you'll stay focused on fun. However, basic schematics of our. Electrical jayco 12 pin wiring. Jayco's limited warranty was already the best—covering you for two full camping seasons, twice as long as the industry standard. Thread starter bank of dad; Select a 2020 jayco series. Obtaining from factor a to point b. Download driver hp deskjet 2135; Founded in 1968, jayco is advertised as america's most livable rvs and furnishes the marketplace with an extensive range of portable, family recreational products. Jayco trailer wiring diagram simple wiring diagram for jayco. Rv wiring diagram white board diagram. 1.jayco precept class a 31ul wiring diagram pdf format contains important information and a detailed explanation about jayco precept class a 31ul wiring diagram pdf format, its contents of the package, names of things and what they do, setup, and operation.